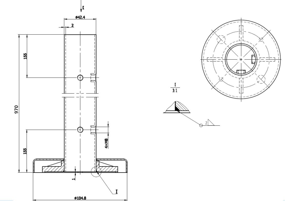
90DG Baluster SS316 Brushed,ø42,4x2x970mm,4 Holes Two Side

Varenummer 22.10.415-9