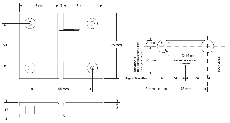
Shower Hinge "Jun" 180DG, CPL, Glass/Glass, 6-8mm Glass Thickness, No Angle Adjustment Function But 25 DG Return Function, Brass Material, Straight Edges

Varenummer 15.24.210-0