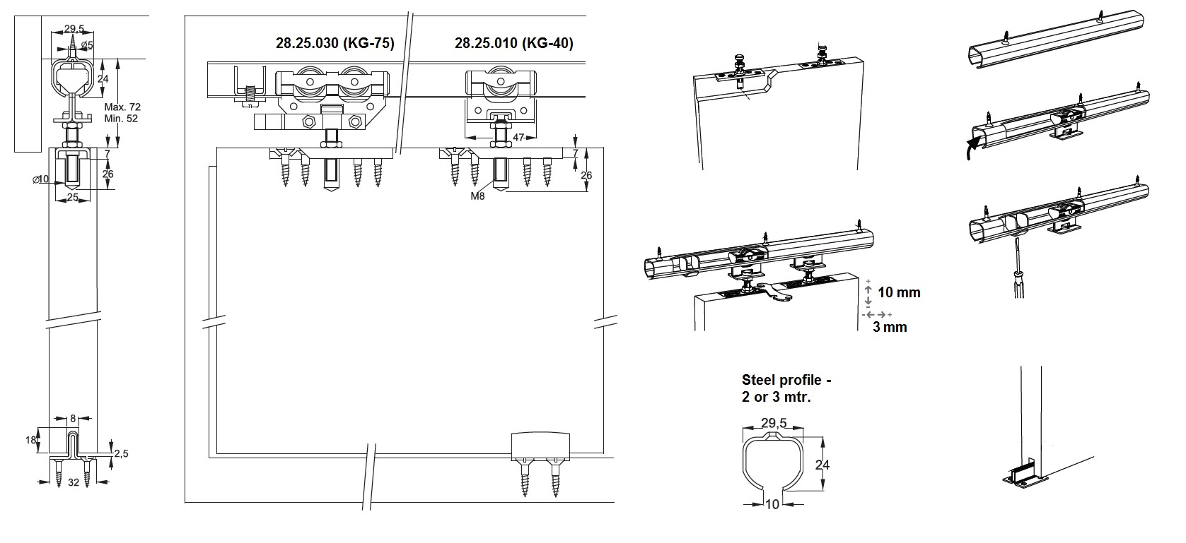
Sliding Door System KG-40, W/Screws & Manual, Max 40KG

Varenummer 28.25.010-1