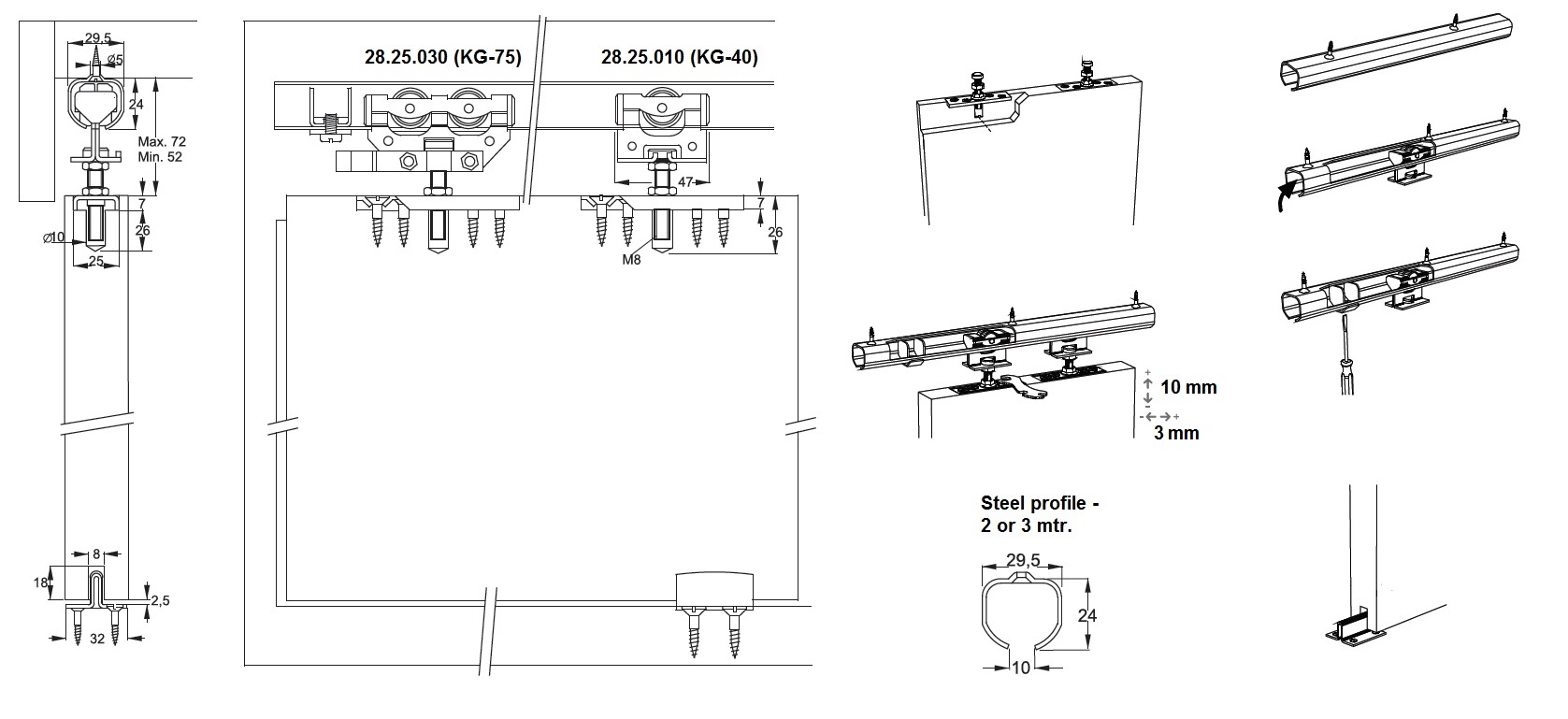
Sliding Door System KG-75, W/Screws & Manual, Max 75KG

Varenummer 28.25.030-1