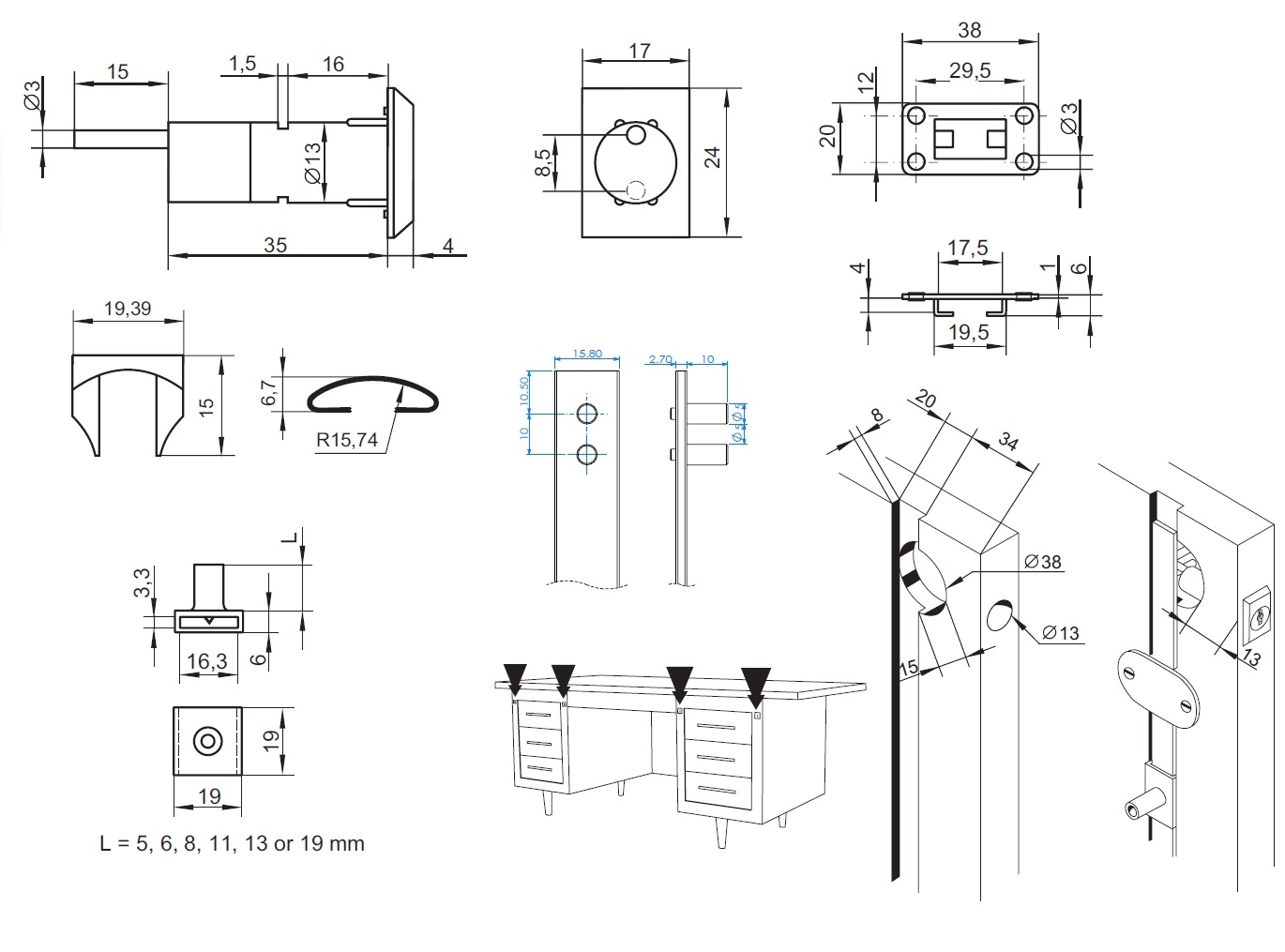
Central Lock 4103/500mm, NPL, 8mm Pegs, CK SISO, W/Acces- sories & Bar

Varenummer 14.04.043-0